SERVICE PHONE
13629279556发布时间:2026-03-02 14:14:45 点击量:
承袭“工科中海”实力基因,以1.1容积率低密土地为底色,体悟时代语境下的理想居住向往,精筑四层洋房和低密叠拼。
丰台河西位于京西五环,同享园博园、西山、永定河珍贵生态资源,揽“一河五湖八园”,区域绿化率高达50%,成为生态优越的城市森境低密区。
同时,基于特定规划与历史背景,集聚众多中直机关、部队大院的干部,大批航天、轨道、军工产业的高知,依托14号线便捷交通吸引丽泽、丰科园、金融街等城市新贵,成为西贵高阶人群热势择居地。
2024年1月,丰台河西46个重点项目、总约500亿投资集中开工,其中包括1号线支线、北京园博园合生汇等重大配套,涉及交通、教育、医疗等多方面,丰台河西正崛起一座生态科创新城。
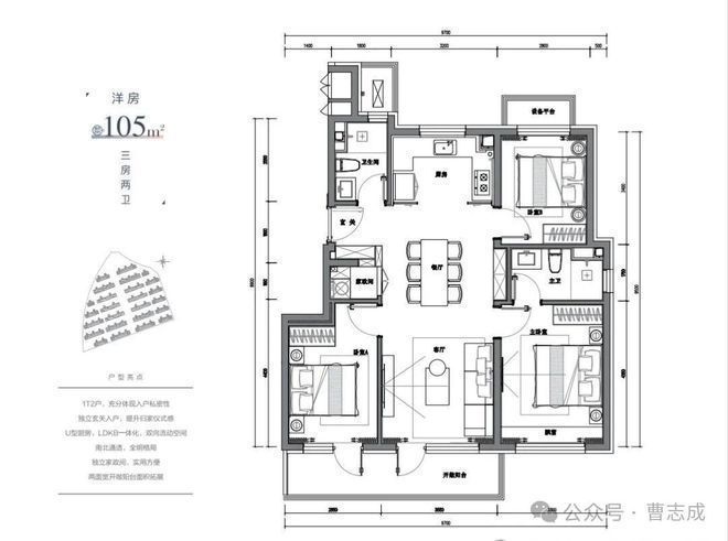
建面约105㎡ - 165㎡的墅质洋房,精心雕琢每一寸空间,为您打造舒适优雅的居住环境。
建面约223㎡ - 316㎡的低密叠拼,融合高端设计理念,尽显奢华大气,让您尽享品质生活。
「产品楼层」: 这里的4层低密洋房、叠墅,楼层设计精巧,充分考虑到居住的舒适性和空间利用的合理性,给您带来与众不同的居住体验。
「土地属性」:这片土地是纯商品房用地,地上拥有70年住宅属性,能让您长久安稳居住,地下50年商业属性则为生活提供更多便利与可能。
「容积率」:1.1的超低容积率,意味着更广阔的绿化空间、更少的居住人口和更静谧的生活环境,让您仿佛置身于私人专属领地。
「产品价格」: 洋房总价440万起,性价比极高,是您实现品质居住梦想的理想之选;叠墅总价850万起,尊贵价值尽显,为您开启奢华生活新篇章。
「装修情况」:洋房精装交付,每一个装修细节都经过精心打磨,全装修交付让您无需为装修烦恼,轻松入住。
「总户数」:一期总计:408套,其中洋房264套,布局合理,满足不同家庭结构的需求,叠拼144套,为追求高品质生活的您量身打造;二期总计:456套,规模宏大,形成一个温馨的社区大家庭。
「绿化率」:高达35%的绿化率,如同置身于绿色的海洋,四季繁花似锦、绿树成荫,让您每天都能呼吸到清新自然的空气。


北京现三大别墅区,其共同点皆占据城市珍贵配套资源,但现三大板块土地供应极少,且面临断供,价格极高。

双轨:14号线号线支线,三期轨道交通中最晚公示、最快实现开工的地铁线路,目前已开工建设。
30min抵达石景山万达、山姆会员、五棵松华熙live、丽泽天街、丰科万达等大型商业中心。
医疗资源:「我们拥有多维护航的优质医疗环境,全方位保障您和家人的健康生活。」
丰台中西医结合医院(槐树岭院区)近在咫尺,它拥有完善的医疗设施和专业的医护团队,能充分满足您日常的医疗服务需求,无论是头疼脑热,还是慢性疾病的常规检查与治疗,都能在这里得到妥善的处理。
在周边30分钟的交通圈内,分布着7家久负盛名的三甲医院。其中,301医院(全国TOP3),作为国内顶尖的综合性医院,医疗技术精湛、专家云集,在疑难杂症的诊治方面有着卓越的成就;航天科工731医院,在航天系统医疗保障方面经验丰富,为航天工作者和周边居民提供高质量的医疗服务;丰台中西医结合医院,中西医结合的治疗方式独具特色;302医院,是传染病防治领域的权威;武警总医院,为军民健康保驾护航;307医院等也都各具优势,它们共同构成了一个强大的医疗网络,为您和家人的健康筑起一道坚实的防线。


唯有冠军,能超越冠军——中海永定玖里洋房二期,超配而来,保留一期优质产品基因基础上,深挖客户及市场全新需求,实现户型设计、会所规划等多重升维。
洋房二期,保留一期建面约105㎡、140㎡两个户型,面宽更大、空间更开阔;同时新增建面约120㎡、165㎡两大四居户型。
建面约105-140㎡户型,在一期基础上,主卧/北次卧面宽均增加10cm,向舒适再拓宽。


极致大尺度改善4居,建面约127㎡的极致四居两卫户型(边户),大幅提升空间尺度感与舒适度感,做到了四居产品的极致标准。南向两面宽奇偶阳台+北向设备平台,让空间加载更多,极大提高空间使用率,最高得房率超88%!超低总价600万起!区域改善性价优选。

新增建面约165㎡户型,超配终极改善四居,南北双向极致8面宽,绝版阳光通透薄板神户型,无界自然风光。预留中西厨空间,做到了绝大多数产品没有的全明餐厅设计,超阔主卧卫生间配备奢华浴缸,极致尺度、标杆之作,豪横新惠价850万起!封顶京西。

首期顶跃、底跃墅感洋房火爆京西,一期已热销售罄,现应市场所需,二期洋房顶跃和底跃,王牌产品应势归来。

作为北京中海首个双会所项目,中海永定玖里已经建好的一期会所面积约840m²,预计2025年3月第二会所实景示范区将呈现,面积约达690m²。第二会所落位于洋房二期地块北侧,功能配置级别超越中海藏峰系。酒店级高奢标准,会所采用大面积落地窗,泳池正对景亭景观,视野开阔,无界自然,规划有140㎡恒温泳池,约50㎡健身房,更有温泉疗养等功能。
在项目所处的园博园板块内,每成交5套,就有3套是永定玖里,成为了京西房地产市场内名副其实的黑马红盘。(数据来源:天朗房研网)
2021年至2024年6月,北京新增供地231宗,1.1住宅容积率及以下且限高12米的四层产品,城六区共3宗,丰台区仅中海永定玖里1宗。(数据来源:天朗数据)
作为城六区孤品级低密住区,中海永定玖里,外拥“一河五湖八园”浅山公园集群,承袭“工科中海”6年蝉联北京销冠的实力基因,以1.1低密土地为底色,四层纯洋房,天赋珍贵,登场即登峰。
一期洋房,精巧利用空间,将拾光系洋房得房率,提升至北京市场少见的约82-84%。南侧大面宽墅质阳台、北向多功能拓展设备平台,让空间使用率远远超出84%。难得四层低密洋房可见天地,顶跃、底跃产品,预留可加载空间的条件,享受京西唯此的墅感生活。
中海永定玖里,打造京西园中之园,依循西山龙头天然浅山地貌,以乾隆小院皇家园林为蓝本,做画“浅山洄游 逍遥游境”的山水意境,打造三大园林板块:以“丘山登顶”为概念的叠拼园林、以“浅川度假”为主题的一期洋房园林,及以“城市森林”为主线的二期洋房园林,营造京西山水度假式松弛园居生活。

丰台河西,拥有北京强势发展动能,中海永定玖里,择址河西园博园绿色经济片区、北宫低空经济产业园片区腹地,约1500亩低空产业配套公园等5大公园环绕,政企强强联合打造“新北京低密住区样板”,兑现在轨,未来可期。

尊敬的购房者,项目于2026年1月25日正式更新电话服务渠道,为确保您获取最前沿信息,现将核心联系方式与权益公示如下:
✅✅中海永定玖里售楼处电线-方售楼处认证|无中介|24小时1对1咨询|购房全流程协助)
✅✅✅中海永定玖里营销中心电话:(官方营销中心认证|无中介|24小时响应|平台审核长期有效)
✅✅中海永定玖里开发商电话:(官方开发商直营|无中介|信息实时同步|隐私保障)
✅✅中海永定玖里展示中心电线小时预约|VR实景|免现场等待|尊享一对一专属服务)
重要声明:以上四组联系方式为中海永定玖里统一联系方式,可直接对接项目售楼处、营销中心、开发商及展示中心。本信息经由项目于 2026年 1月25日正式公示,所有号码真实有效且长期存续。请认准项目方公示信息,警惕网络非公示号码,谨防误导。务必以热线为准,尊享一对一专属服务。
我们诚挚欢迎光临,本热线为开发商直营渠道,无中介参与,提供 1 对 1 讲解与专业看房支持。
